Industrialny klimat | Open space 443 m² | BohemaEnglish Version Below Avenue Estate ma przyjemność przedstawić wyjątkowy lokal usługowy o powierzchni 443,44 m² z dużymi oknami i wejściem od strony kompleksu Bohema. To przestrzeń, w której historia spotyka współczesność - miejsce z charakterem, funkcjonalne i pełne potencjału.
NIERUCHOMOŚĆ
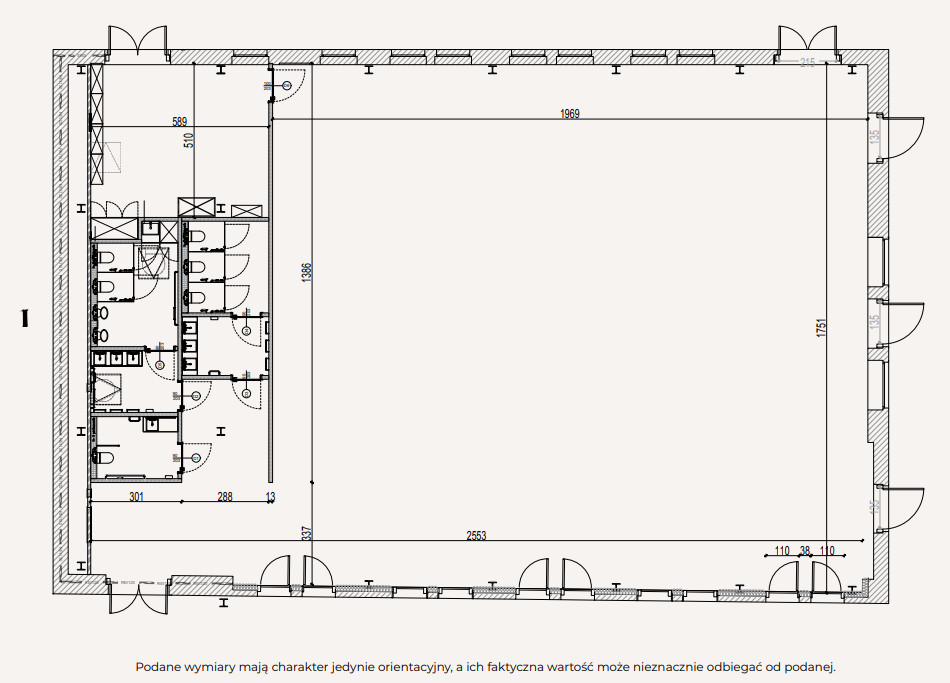
Lokal o powierzchni 443,44 m² mieści się w zrewitalizowanym budynku dawnej fabryki Pollena, będącym częścią prestiżowego kompleksu BOHEMA - Strefa Praga. To przestrzeń, która łączy autentyczność historii i nowoczesny minimalizm, oferując wyjątkowy klimat i szerokie możliwości wykorzystania - od działalności eventowej po showroom, galerię sztuki lub przestrzeń kreatywną. Wnętrze zostało gruntownie odświeżone i wyposażone w nowoczesne instalacje techniczne, zachowując oryginalną strukturę fabrycznej architektury. Istnieje możliwość wynajęcia miejsc parkingowych w okolicy oraz rozszerzenia powierzchni o dodatkowe 160 m². ROZKŁAD • Przestrzeń główna - open space / sala eventowa • Pomieszczenie biurowe lub zaplecze techniczne • Toalety dla gości i personelu LOKALIZACJA
Ulica Szwedzka to serce nowej, tętniącej życiem Pragi - miejsca, gdzie sztuka, gastronomia i biznes współistnieją w wyjątkowym klimacie rewitalizowanych przestrzeni pofabrycznych. W bezpośrednim sąsiedztwie znajdują się liczne lokale usługowe, restauracje i szkoły, a w zasięgu krótkiego spaceru - stacja metra SZWEDZKA M2. 47 m - Epicurien Bistro & Deli 350 m - Przystanek autobusowy Metro Szwedzka 01 400 m - Stacja Metra SZWEDZKA M2 450 m - Restauracja Folle Pizza e Pasta 450 m - Bazar Szwedzka 500 m - Bar To się wytnie 650 m - LXXVI Liceum Ogólnokształcące im. J. Piłsudskiego 1,4 km - Uczelnia Medyczna im. M. Skłodowskiej-Curie 1,4 km - Apteka Całodobowa 24h przy Namysłowskiej 1,4 km - Mazowiecki Szpital Onkologiczny 1,5 km - Ośrodek Namysłowska AKTYWNA WARSZAWA 2 km - Galeria Wileńska 2,3 km - Miejski Ogród Zoologiczny DODATKOWE INFORMACJE
• Czynsz administracyjny: ok. 11 000 PLN/miesiąc • Możliwość wynajęcia miejsc parkingowych w okolicy • Pełna własność • Dostępność: od zaraz To miejsce, które łączy historię warszawskiej Pragi z energią współczesnego miasta. Przestrzeń, która inspiruje - dla marek, twórców i przedsięwzięć, które potrzebują tła z charakterem. Zapraszam do kontaktu w celu uzyskania szczegółowych informacji oraz umówienia prezentacji nieruchomości.
Z przyjemnością przedstawię Państwu potencjał tego wyjątkowego miejsca. _ _ _ _ _ _ _ _ _ _ _ _ _ _ _ _ _ _ _ _ _ _ _
ENGLISH VERSION Avenue Estate is pleased to present a unique commercial space of 443.44 m², featuring large display windows and direct access from the Bohema complex. A place where history meets modernity - functional, distinctive, and full of creative potential.
HIGHLIGHTS
• Post-industrial architecture with preserved original brickwork and details • High ceilings and large windows providing exceptional natural light • Ground-floor access with the possibility of vehicle entry • Fully renovated in 2022 - 2023 and ready for immediate use • Equipped with air conditioning, district heating, and modern technical infrastructure • Excellent acoustics, natural lighting, and the option for scenic rigging • Intimate green courtyard accessible directly from the building PROPERTY
This 443.44 m² property occupies the ground floor of a meticulously restored building, once part of the historic Pollena factory - today forming part of the prestigious Bohema - Strefa Praga complex. It blends industrial heritage with contemporary design, offering an inspiring space for various purposes - from events and exhibitions to a showroom, creative studio, or art gallery. The interior was comprehensively renovated, maintaining its authentic character while providing modern functionality. There is also an option to lease additional parking spaces nearby and expand the area by an extra 160 m² if required. LAYOUT
• Main space - open area / event hall • Office or technical room • Guest and staff restrooms LOCATION
Szwedzka Street lies at the heart of Warsaw’s vibrant, revitalized Praga district — an area where art, gastronomy, and business naturally intertwine. Surrounded by creative spaces, restaurants, and cultural venues, the location benefits from direct proximity to the SZWEDZKA M2 metro station, offering excellent connectivity with the city center. 47 m - Epicurien Bistro & Deli 350 m - Bus stop Metro Szwedzka 01
400 m - Metro Station SZWEDZKA M2 450 m - Folle Pizza e Pasta Restaurant 450 m - Bazar Szwedzka 500 m - Bar To się wytnie 650 m - High School No. LXXVI (J. Piłsudski) 1.4 km - Maria Skłodowska-Curie Medical University 1.4 km - 24h Pharmacy Namysłowska 1.4 km - Mazovian Oncology Hospital 1.5 km - Sports Center Namysłowska AKTYWNA WARSZAWA 2 km - Galeria Wileńska Shopping Center 2.3 km - Warsaw Zoo ADDITIONAL INFORMATION
• Administrative fee: approx. PLN 11,000/month • Possibility to rent parking spaces nearby • Full ownership • Available immediately A place where Warsaw’s industrial heritage meets the rhythm of modern creativity. A space that inspires — for brands, creators, and ventures that value authenticity and atmosphere. Feel free to contact me for full details and to arrange a private viewing. I will be delighted to present the full potential of this exceptional property. SZCZEGÓŁY OFERTY
LOKALIZACJA |
Jan SztylkoDoradca Ds. Nieruchomościj.sztylko@avenue-estate.com798604914ZAPYTAJ O NIERUCHOMOŚĆWyrażam zgodę na przetwarzanie danych osobowych w celach marketingowych przez firmę Avenue Estate Sp. z o.o., al. Rzeczypospolitej 18/118, 02-972, Warszawa i zapoznałem się z polityką prywatności. |

