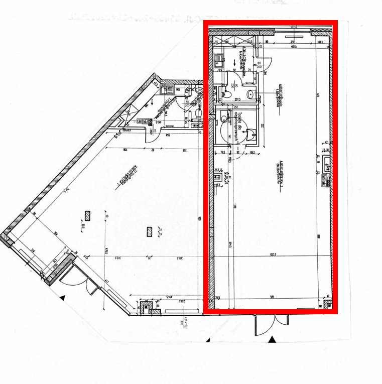
Pod gastronomię.Prezentujemy lokal usługowy na nowych osiedlach na Stegnach w okolicy inwestycji takich jak "Dolina Mokotów", "Ogrody Potoki", "Rezydencje Dolina Mokotów"Lokal usługowy w stanie deweloperskim, do własnej aranżacji. Wysokie sufity ponad 3 m, witryny, możliwość prowadzenia usług, pełna gastronomia, zgoda notarialna na alkohol. Lokal o kształcie prostokąta: Powierzchnia sprzedaży: 88,58m2 Powierzchnia socjalna: 6,48m2 Toaleta: 1,88m2 Możliwość powiększenia lokalu o lokal sąsiedni ( 88,58 m2) łącznie tworząc powierzchnię około165m2 Cena podana netto. Zapraszam do kontaktu. SZCZEGÓŁY OFERTY
LOKALIZACJA |
Małgorzata KrasowskaAsystentka Zarządum.krasowska@avenue-estate.com798 382 215ZAPYTAJ O NIERUCHOMOŚĆWyrażam zgodę na przetwarzanie danych osobowych w celach marketingowych przez firmę Avenue Estate Sp. z o.o., al. Rzeczypospolitej 18/118, 02-972, Warszawa i zapoznałem się z polityką prywatności. |

