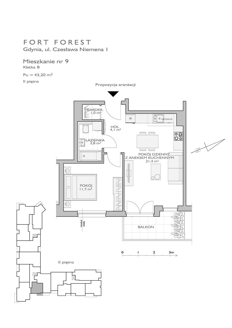
Dwupokojowe mieszkanie FORT FOREST GdyniaAvenue Estate prezentuje dwupokojowy, świeżo odebrany i zaaranżowany apartament na osiedlu FORT FOREST w Gdyni Wiczlinie.LOKALIZACJA Nieruchomość mieści się w wymarzonej lokalizacji zarówno do mieszkania na co dzień jak i typowo pod letnią rezydencję lub na pewną inwestycję. Tuż obok znajduje się Trójmiejski Park Krajobrazowy. Dla osób ceniących ciszę i spokój mieszkanie to urzeczywistnia najwyższe standardy harmonii i równowagi, gdyż położone jest przy samym lesie, a jednocześnie moment do morza, piaszczystej plaży i Centrum miasta. W pobliżu nieruchomości znajduje się zaplecze handlowo-usługowe, LIDL, ALDI, BIEDRONKA, Przychodnia, Fitness oraz Przedszkola i Szkoły. APARTAMENT składa się z otwartego, 22 metrowego salonu z panoramicznym widokiem na ogrody i zieleń lasu. Ogromne okna zapewniają idealne doświetlenie cały dzień, a balkon zaprasza na poranną kawę lub kolację przy blasku świec. Perfekcyjnie zaprojektowany aneks kuchenny wtapia się w tą przestrzeń i dodaje splendoru szlachetnymi materiałami wykończeniowymi oraz markowym AGD. Również od strony lasu znajduje się 11,7 metrowa sypialnia. 4 metrowy hol prowadzi nas do 3,8 metrowej łazienki, wyposażonej w ściankę prysznicową, umywalkę z dużymi szufladami, podświetlane lustro led i wc. Obok pomieszczenie gospodarcze- garderoba. Osiedle zostało przemyślane pod kątem zapewnienia możliwie jak największego poziomu bezpieczeństwa mieszkańcom. Cała inwestycja jest ogrodzona, a teren osiedla chroniony i monitorowany całodobowo. DODATKOWE INFORMACJE Do mieszkania przynależy miejsce postojowe w hali garażowej i komórka lokatorska dodatkowo płatne 52.000 pln. SZCZEGÓŁY OFERTY
LOKALIZACJA |
Małgorzata KrasowskaAsystentka Zarządum.krasowska@avenue-estate.com798 382 215ZAPYTAJ O NIERUCHOMOŚĆWyrażam zgodę na przetwarzanie danych osobowych w celach marketingowych przez firmę Avenue Estate Sp. z o.o., al. Rzeczypospolitej 18/118, 02-972, Warszawa i zapoznałem się z polityką prywatności. |

