
Piaseczno - Dom na sprzedaż
Bliźniak 164 m² w stanie develop. k/ Piaseczna
English Version Below
Avenue Estate prezentuje nowoczesny dom w zabudowie bliźniaczej na kameralnym osiedlu Siedliska Park obok Piaseczna.
Wyobraź sobie poranki, kiedy pierwsze promienie słońca delikatnie wlewają się do wnętrza, a powietrze pachnie świeżą kawą i poranną ciszą. Popołudnia mijają spokojnie, między szumem liści w ogrodzie a lekkim wiatrem przemykającym przez drzewa. Wieczory spędzasz na tarasie, obserwując zmieniające się światło na zielonym ogrodzie, w którym każdy zakamarek zaprasza do odpoczynku i spotkań z najbliższymi. To miejsce, w którym czas płynie wolniej, a każdy moment staje się wyjątkowy.
ATUTY • Kameralne, prestiżowe osiedle o spójnej i nowoczesnej architekturze • Funkcjonalny podział na strefę dzienną i prywatną • Duże przeszklenia zapewniające bardzo dobre naturalne nasłonecznienie • Prywatny ogród z automatycznym nawadnianiem i systemem drenażu • Garaż w bryle budynku oraz liczne pomieszczenia pomocnicze • Stan deweloperski umożliwiający pełną personalizację wnętrz • Zielone, spokojne otoczenie przy szybkim dojeździe do Piaseczna i Warszawy
NIERUCHOMOŚĆ Dom w zabudowie bliźniaczej o powierzchni użytkowej 164,4 m² i całkowitej 218 m², posadowiony na działce 512 m², znajduje się na kameralnym osiedlu Siedliska Park. Bryła budynku łączy elegancję z nowoczesną funkcjonalnością, harmonijnie wpisując się w zielone otoczenie.
Parter pełni funkcję reprezentacyjnej strefy dziennej - przestronny salon z jadalnią płynnie łączy się z ogrodem, a kuchnia ze spiżarnią, gabinet i pomieszczenia techniczne zwiększają komfort codziennego życia. Garaż w bryle budynku zapewnia bezpieczeństwo i wygodę.
Piętro to prywatna strefa nocna: trzy sypialnie, dwie łazienki i garderoby zapewniają intymność i komfort. Stan deweloperski umożliwia pełną aranżację wnętrz zgodnie z indywidualnymi potrzebami przyszłych właścicieli.
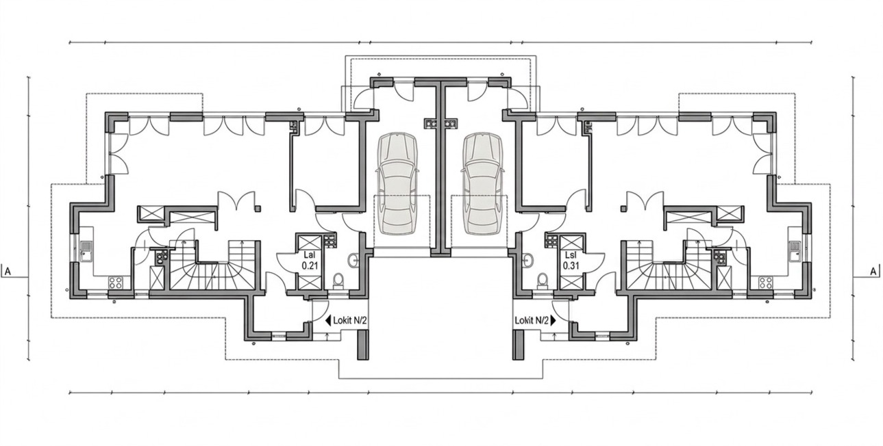
ROZKŁAD Parter • Przedsionek (3.33 m²) • Hol / komunikacja (11.31 m²) • Garderoba (2.33 m²) • Pomieszczenie techniczne (4.26 m²) • Pomieszczenie gospodarcze (3.61 m²) • Garaż (16.45 m²) • Gabinet (10.30 m²) • Salon z jadalnią (30.35 m²) • Kuchnia (9.08 m²) • Spiżarnia (1.97 m²) • WC (1.91 m²)
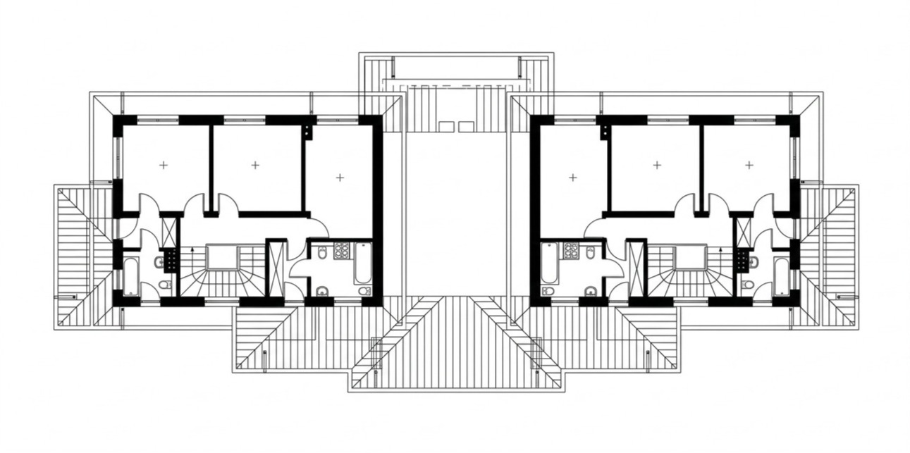
Piętro • Schody (6.61 m²) • Komunikacja (6.12 m²) • Garderoba (3.80 m²) • Łazienka (5.66 m²) • Pokój (13.32 m²) • Pokój (13.68 m²) • Sypialnia (13.43 m²) • Garderoba przy sypialni (2.94 m²) • Łazienka (3.94 m²)
LOKALIZACJA Dom znajduje się w Siedliskach, tuż przy granicy Piaseczna, w otoczeniu zieleni i nowej zabudowy jednorodzinnej. Lokalizacja oferuje ciszę, prywatność oraz bezpieczne środowisko dla rodzin, przy szybkim dostępie do edukacji, usług i Warszawy.
450 m - lokalny przystanek autobusowy 800 m - szkoły i przedszkola 950 m - tereny spacerowe i ścieżki rowerowe 2.1 km - restauracje i kawiarnie w Piasecznie 2.5 km - centrum Piaseczna 2.8 km - centra handlowe i punkty usługowe 3.2 km - Centrum Edukacyjno-Rekreacyjne w Piasecznie 4.8 km - Konstancin-Jeziorna (Park Zdrojowy, tężnia solankowa, restauracje) 5 km - Chojnowski Park Krajobrazowy
DODATKOWE INFORMACJE • rynek pierwotny, stan deweloperski • garaż w bryle budynku • ogród z automatycznym nawadnianiem i drenażem
Ten bliźniak to wyjątkowa propozycja dla rodzin poszukujących miejsca, w którym każdy dzień płynie w spokoju, a chwile spędzone razem nabierają wyjątkowego znaczenia.
Zapraszam do kontaktu i obejrzenia domu - poczuj atmosferę Siedlisk Park na własnej skórze!
_ _ _ _ _ _ _ _ _ _ _ _ _ _ _ _ _ _ _ _ _ _ _
ENGLISH VERSION
Avenue Estate presents a modern semi-detached house in the intimate Siedliska Park estate near Piaseczno.
Imagine mornings when the first rays of sunlight gently fill the interior, and the air carries the aroma of freshly brewed coffee and the calm of early hours. Afternoons pass peacefully, surrounded by the rustle of leaves in the garden and the light breeze weaving through the trees. Evenings are spent on the terrace, watching the changing light across the green garden, where every corner invites relaxation and family gatherings. This is a place where time slows down, and every moment becomes special.
HIGHLIGHTS • Intimate, prestigious estate with cohesive and modern architecture • Functional division between living and private areas • Large windows providing excellent natural light • Private garden with automatic irrigation and drainage system • Garage integrated into the building and multiple utility rooms • Developer’s finish allowing full interior customization • Green, tranquil surroundings with quick access to Piaseczno and Warsaw
PROPERTY This semi-detached house offers 164.4 m² of usable space and a total of 218 m², set on a 512 m² plot in the intimate Siedliska Park estate. The building combines elegance with modern functionality, harmoniously blending into its green surroundings.
The ground floor serves as a representative living area - a spacious living and dining room flows seamlessly into the garden, while the kitchen with pantry, office, and technical rooms enhance daily comfort. The garage within the building ensures safety and convenience.
The first floor is the private sleeping area: three bedrooms, two bathrooms, and walk-in closets provide intimacy and comfort. The developer’s finish allows full interior design according to the owners’ individual preferences.
LAYOUT Ground Floor • Vestibule (3.33 m²) • Hall / Communication (11.31 m²) • Walk-in Closet (2.33 m²) • Technical Room (4.26 m²) • Utility Room (3.61 m²) • Garage (16.45 m²) • Office (10.30 m²) • Living and Dining Room (30.35 m²) • Kitchen (9.08 m²) • Pantry (1.97 m²) • WC (1.91 m²)
First Floor • Stairs (6.61 m²) • Communication (6.12 m²) • Walk-in Closet (3.80 m²) • Bathroom (5.66 m²) • Room (13.32 m²) • Room (13.68 m²) • Bedroom (13.43 m²) • Walk-in Closet (attached to bedroom) (2.94 m²) • Bathroom (3.94 m²)
LOCATION The house is located in Siedliska, right on the border of Piaseczno, surrounded by greenery and new single-family developments. The location offers peace, privacy, and a safe environment for families, with quick access to education, services, and Warsaw.
450 m - local bus stop 800 m - schools and kindergartens 950 m - walking and cycling paths 2.1 km - restaurants and cafés in Piaseczno 2.5 km - Piaseczno town center 2.8 km - shopping centers and service points 3.2 km - Piaseczno Educational and Recreational Center 4.8 km - Konstancin-Jeziorna (Spa Park, graduation tower, restaurants) 5 km - Chojnowski Landscape Park
ADDITIONAL INFORMATION • Developer’s finish, primary market • Garage integrated into the building • Garden with automatic irrigation and drainage
This semi-detached house is an exceptional offer for families seeking a place where every day flows peacefully, and moments spent together gain extraordinary meaning.
Contact me directly to schedule a viewing - experience the atmosphere of Siedliska Park for yourself!
SZCZEGÓŁY OFERTY
| Numer oferty: |
871293 |
| Powierzchnia użytkowa: |
218㎡ |
| Powierzchnia działki: |
512㎡ |
| Liczba pokoi: |
5 |
| Liczba sypialni: |
3 |
| Liczba łazienek: |
2 |
| Rodzaj oferty: |
Sprzedaż |
| Cena: |
1 620 000 PLN |
| Cena za ㎡: |
7 431 PLN |
|
| Rodzaj oferty: |
Sprzedaż |
| Cena: |
1 620 000 PLN |
| Cena za ㎡: |
7 431 PLN |
|
KONTAKT
Jan Sztylko
Doradca Ds. Nieruchomości
|
|
LOKALIZACJA
|
|