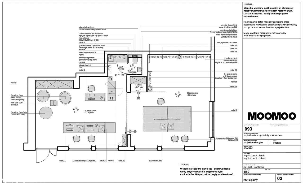
Biuro Inwestycyjne | Gotowy Najemca | 5% ROI*English Version Below*Avenue Estate prezentuje kameralne biuro inwestycyjne z gotowym najemcą i 7,6% ROI przy ul. płowieckiej. Funkcjonalny lokal biurowy o powierzchni 88,3 m², wykończony w wysokim standardzie i sprzedawany z miejscem parkingowym w garażu podziemnym. Nieruchomość generuje stabilny dochód na poziomie około 7,6% ROI, stanowiąc bezpieczną i przewidywalną lokatę kapitału. ATUTY • Gotowa inwestycja z rentownością ok. 7,6% ROI • Parter z witrynami i wejściem od ulicy • Ekspozycja południowa z doświetleniem wschodnim i zachodnim • Klimatyzacja, monitoring, rozprowadzona sieć IT • Mikrocementowa podłoga i szklane drzwi przesuwne • Miejsce parkingowe w garażu podziemnym w cenie • Duża ilość miejsca do parkowania przed budynkiem przy ulicy bez zakazu • Wysokość pomieszczeń 2,9 m NIERUCHOMOŚĆ Lokal o powierzchni 88,3 m² znajduje się na parterze czterokondygnacyjnego budynku z 2012 roku. Prostokątny układ oraz duże witryny zapewniają bardzo dobre doświetlenie i reprezentacyjny charakter przestrzeni. Wnętrze zostało zaprojektowane przez renomowaną pracownię MOOMOO, co przekłada się na spójność estetyczną i ponadczasowy standard wykończenia. Podłoga z mikrocementu, drewniana ściana akcentowa oraz duże, szklane drzwi przesuwne budują profesjonalny wizerunek firmy. Biuro jest w pełni wyposażone i przygotowane do dalszego użytkowania bez dodatkowych nakładów inwestycyjnych. Klimatyzacja, instalacja światłowodowa, sieć komputerowa oraz system monitoringu zapewniają komfort i bezpieczeństwo pracy. Ogrzewanie z sieci miejskiej gwarantuje stabilność kosztów eksploatacyjnych. ROZKŁAD • Otwarta przestrzeń biurowa • Sala konferencyjna oddzielona przesuwnymi drzwiami szklanymi • Oddzielna kuchnia • Łazienka • Zabudowy meblowe i funkcjonalne szafy LOKALIZACJA Nieruchomość położona jest przy ul. Płowieckiej, w rozwijającej się części dzielnicy Wawer, w rejonie Gocławka. Lokalizacja zapewnia szybki dojazd do centrum oraz bardzo dobrą dostępność komunikacyjną dla pracowników i klientów. Bliskość Trasy Siekierkowskiej umożliwia sprawne połączenie z lewobrzeżną Warszawą oraz głównymi arteriami miasta. W niedużej odległości znajdują się przystanki komunikacji miejskiej, stacja Warszawa Gocławek oraz Galeria Handlowa Promenada. • 200 m - przystanki autobusowe • 650 m - stacja SKM Warszawa Gocławek • 2 km - Trasa Siekierkowska • 4 km - Galeria Handlowa Promenada • 8 km - centrum Warszawy DODATKOWE INFORMACJE • Pełna własność z księgą wieczystą • Czynsz administracyjny - 1 200 zł • Obowiązkowe miejsce parkingowe w garażu podziemnym - w cenie 50 000 zł • Lokal klimatyzowany To propozycja dla inwestora poszukującego stabilnego aktywa generującego przewidywalny dochód w dynamicznie rozwijającej się części Warszawy. Zapraszam do kontaktu w celu umówienia prezentacji nieruchomości! _ _ _ _ _ _ _ _ _ _ English Version Below _ _ _ _ _ _ _ _ _ _ Avenue Estate presents a boutique investment office with a ready tenant and 7,6% ROI on Płowiecka Street. A functional office space of 88.3 m², finished to a high standard and sold with an underground parking space. The property generates a stable income of approximately 7,6% ROI, making it a secure and predictable capital investment. HIGHLIGHTS • Ready-to-go investment with an estimated 7,6% ROI • Ground floor with street-facing windows and direct entrance • Southern exposure with additional natural light from the east and west • Air conditioning, monitoring, and structured IT network • Microcement flooring and large sliding glass doors • Underground parking space included in the price • Ample street parking available directly in front of the building without restrictions • Ceiling height of 2.9 m PROPERTY The office occupies 88.3 m² on the ground floor of a four-story building constructed in 2012. Its rectangular layout and large windows ensure excellent natural light and a professional, representative appearance. The interior was designed by the renowned studio MOOMOO, reflecting aesthetic coherence and a timeless finish. Microcement floors, a wooden feature wall, and large sliding glass doors create a sophisticated and modern corporate image. The office is fully equipped and ready for immediate use without additional investment. Air conditioning, fiber-optic internet, a computer network, and a monitoring system ensure comfort and security. Central city heating guarantees stable operating costs. LAYOUT • Open-plan office area • Conference room separated by sliding glass doors • Separate kitchen • Bathroom • Built-in furniture and functional storage units LOCATION The property is located on Płowiecka Street in the developing Wawer district, near Gocławek. The location offers fast access to the city center and excellent public transport options for employees and clients. Proximity to the Siekierkowska Route allows easy connections to the left bank of Warsaw and main city arteries. Nearby amenities include public transport stops, Warszawa Gocławek train station, and Promenada Shopping Mall. • 200 m - bus stops • 650 m - SKM Warszawa Gocławek station • 2 km - Siekierkowska Route • 4 km - Promenada Shopping Mall • 8 km - Warsaw city center ADDITIONAL INFORMATION • Full ownership with land and mortgage register • Administrative fees - PLN 1,200 • Mandatory parking space in the underground garage - price: PLN 50,000 • Air-conditioned office This is an opportunity for an investor seeking a stable asset generating predictable income in a rapidly developing part of Warsaw. Contact me to arrange a property viewing! SZCZEGÓŁY OFERTY
LOKALIZACJA |
Jan SztylkoDoradca Ds. Nieruchomościj.sztylko@avenue-estate.com798604914ZAPYTAJ O NIERUCHOMOŚĆWyrażam zgodę na przetwarzanie danych osobowych w celach marketingowych przez firmę Avenue Estate Sp. z o.o., al. Rzeczypospolitej 18/118, 02-972, Warszawa i zapoznałem się z polityką prywatności. |

