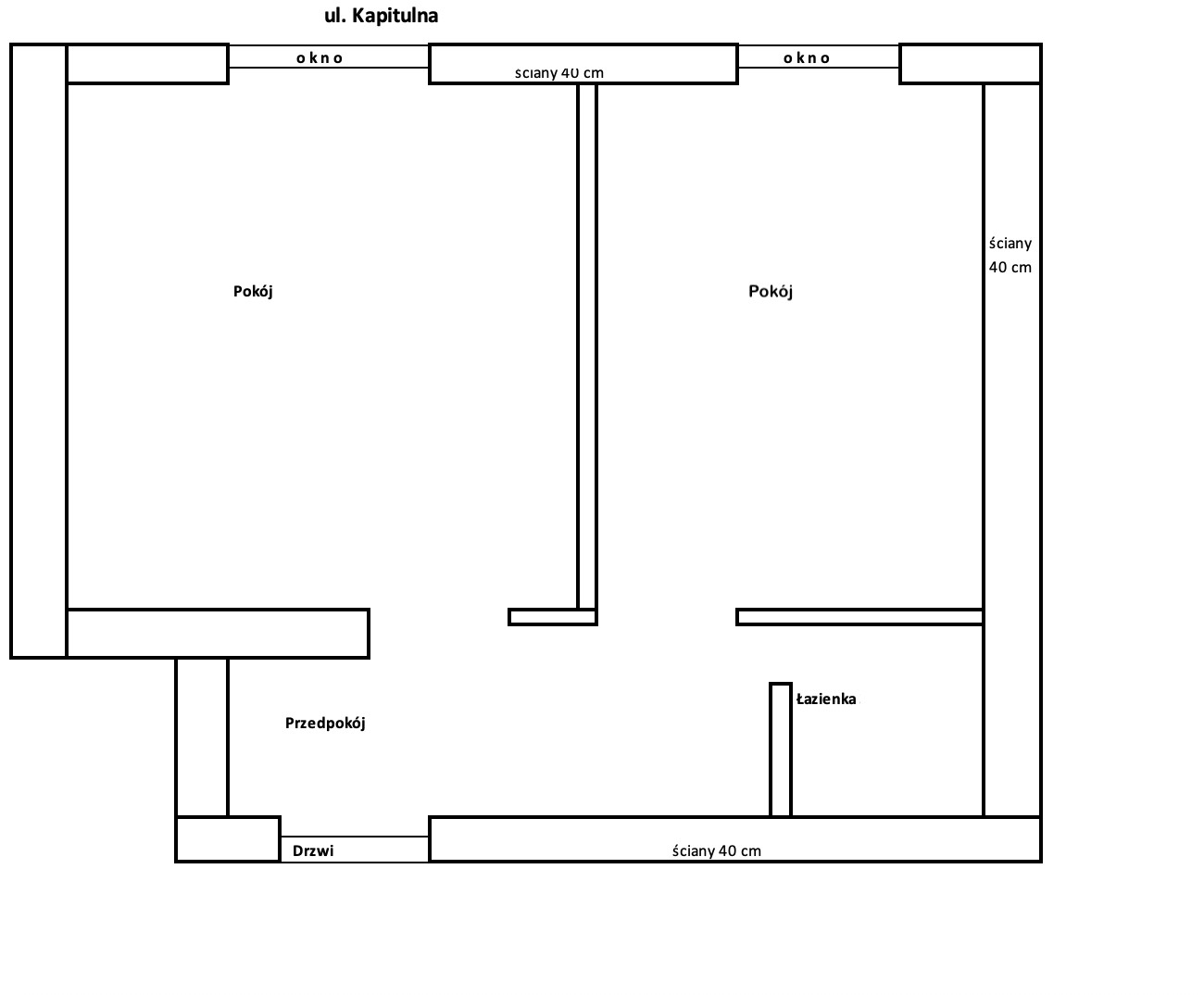
2 Pokoje/ Podwyższony Parter/ Nieprzejezdna ulica------- ENGLISH DESCRIPTION BELOW -------Avenue Estate prezentuje 2-pokojowe mieszkanie na sprzedaż położone na podwyższonym parterze w pięknej kamienicy, na wprost pomnika Kilińskiego, na rogu Podwala i Kapitulnej. ****** Wysoki parter, okna są na wysokości 190 cm od chodnika do światła okna, wychodzą na ul. Kapitulną, którą nie jeżdżą samochody. ATUTY: - Łatwe parkowanie i komunikacja pomimo położenia przy Starym Mieście - Elastyczne możliwości w układzie - Duża piwnica - Klimatyczne, piękne części wspólne, patio - Wysokość 3 metry! - Ekspozycja od strony nieprzejezdnej, małej uliczki - Tuż przy metrze oraz innych punktach komunikacyjnych - Przestronna piwnica Domofon, bramy zamykane, bardzo ciche i zadbane podwórko, klatka po remoncie. Budynkiem zarządza spółdzielnia Syrena. Grunty są uregulowane i są własnością spółdzielni. Bez obciążeń, możliwość założenia księgi wieczystej. Apartament ten świetnie nadaje się zarówno do zamieszkania jak i wynajmu długookresowo lub krótkookresowego. Możliwość wynajęcia miejsca garażowego przy budynkach Sądu na Placu Krasińskich. LOKALIZACJA Wejście od ul. Podwale lub od ul. Miodowej Stacja Metra - 850 metrów Bulwary Wiślane - 700 metrów Ogród Krasińskich - 400 metrów Zamek Królewski - 300 metrów Odległości do punktów użyteczności publicznej: Przedszkole - 340m, Szkoła - 220 m, Szkoła wyższa 130 m Autobus - 110m, Tramwaj - 320 m Lokalizacja w bezpośrednim sąsiedztwie najbardziej reprezentacyjnej części miasta - warszawskiej Starówki. Zaledwie dwuminutowy spacer dzieli nieruchomość od Rynku Starego Miasta oraz Placu Zamkowego, gdzie znajdują się liczne restauracje, kawiarnie i atrakcje turystyczne. DODATKOWE INFORMACJE - Czynsz 593 zł miesięcznie (w tym zaliczki na poczet zużycia mediów) - Możliwość wynajęcia miejsca garażowego przy budynkach Sądu na Placu Krasińskich. - Przestronna piwnica w cenie ------- ENGLISH DESCRIPTION ------- For sale: a 2-room apartment on the elevated ground floor of a beautiful tenement building opposite the Kiliński Monument, on the corner of Podwale and Kapitulna Streets. ****** The elevated ground floor, with windows at a height of 190 cm from the sidewalk to the window, overlooks Kapitulna Street, a street that is traffic-free. FEATURES: - Easy parking and access despite its location near the Old Town - Flexible layout options - Large basement - Atmospheric, beautiful common areas, patio - 3-meter ceiling height! - Facing a small, impassable street - Right next to the metro and other transportation hubs - Spacious storage room Intercom, lockable gates, a very quiet and well-maintained courtyard, and a renovated staircase. The building is managed by the Syrena cooperative. The land is regulated and owned by the cooperative. No encumbrances, and a land and mortgage register can be established. This apartment is perfect for both long-term and short-term rentals. Garage parking is available for rent next to the Court Buildings on Krasiński Square. LOCATION Entrance from Podwale Street or Miodowa Street Metro Station - 850 meters Vistula Boulevards - 700 meters Krasiński Garden - 400 meters Royal Castle - 300 meters Distances to public amenities: Kindergarten - 340 meters, School - 220 meters, University - 130 meters Bus - 110 meters, Tram - 320 meters Located in the immediate vicinity of the most prestigious part of the city - Warsaw's Old Town. Just a two-minute walk from the Old Town Square and Castle Square, where you'll find numerous restaurants, cafes, and tourist attractions. ADDITIONAL INFORMATION - Rent: PLN 593 per month (including advance payments for utilities) - Parking space available for rent next to the Court Building on Krasiński Square. - Spacious storage room included in the price SZCZEGÓŁY OFERTY
LOKALIZACJA |
Robert RaptisPartnerr.raptis@avenue-estate.com605 555 619ZAPYTAJ O NIERUCHOMOŚĆWyrażam zgodę na przetwarzanie danych osobowych w celach marketingowych przez firmę Avenue Estate Sp. z o.o., al. Rzeczypospolitej 18/118, 02-972, Warszawa i zapoznałem się z polityką prywatności. |

