|
Zapraszamy Państwa do zapoznania się z nowo powstającą inwestycją w Wilanowie Zawady. Wille miejskie w otoczeniu zieleni, piękne przeszklenia, wyjątkowa wysokość pomieszczeń.
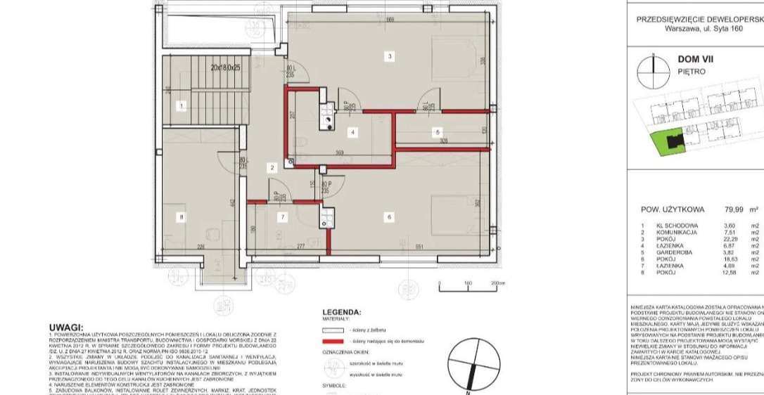
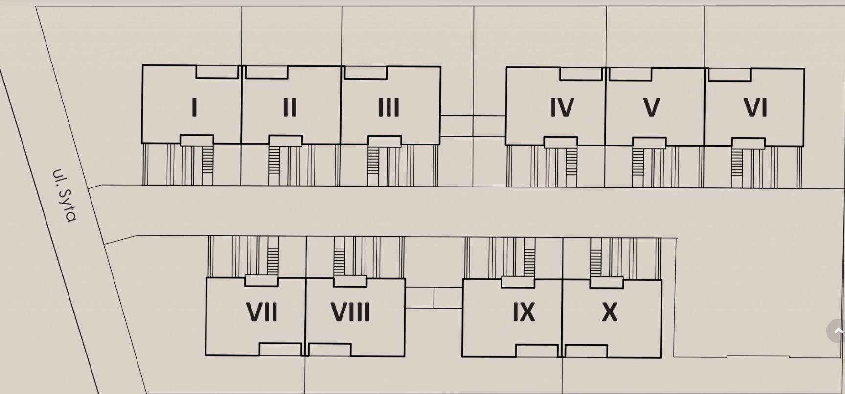
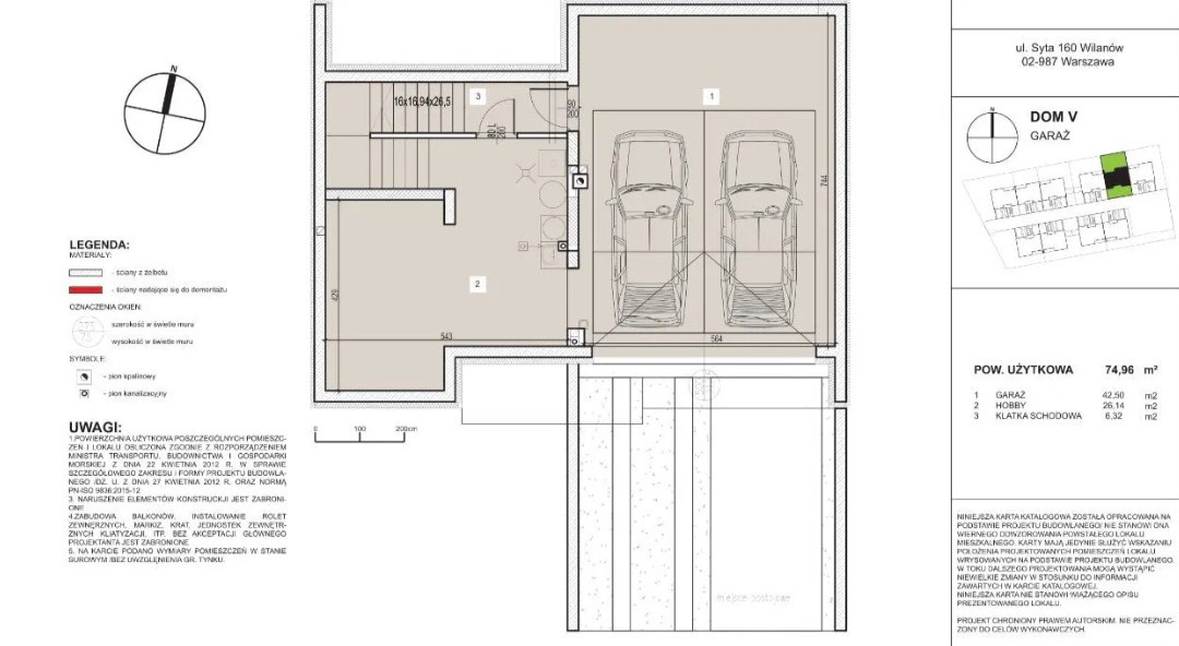
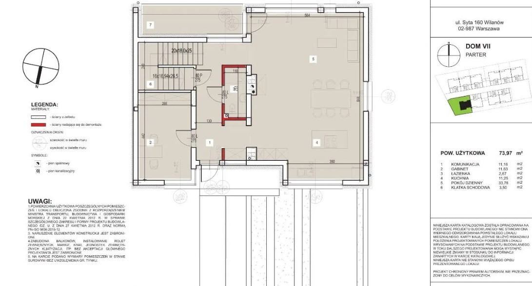
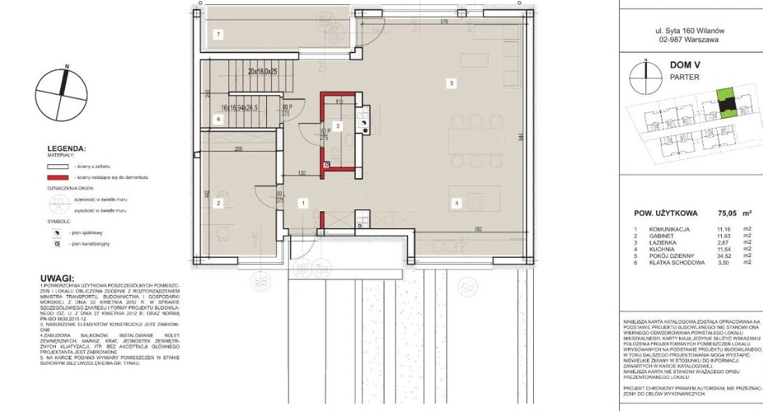
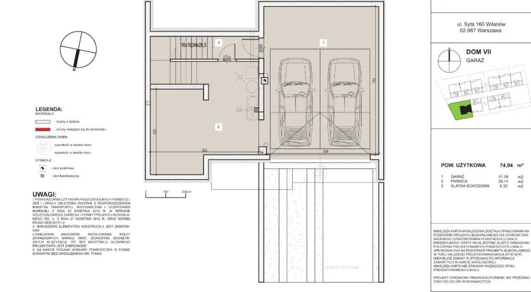
ATUTY - Znakomita lokalizacja osiedla - Dwustanowiskowe garaże - Bliskość kawiarni, restauracji oraz atrakcji turystycznych NIERUCHOMOŚĆ Całość inwestycji to 10 domów jednorodzinnych w zabudowie bliźniaczej z ogrodami, obszernymi garażami dwustanowiskowymi. Każdy dom (230 m2) ma dwie, pełne, kondygnacje mieszkalne, ogród oraz garaż dwustanowiskowy (ponad 40 m2) i pomieszczenie na hobby (ponad 25 m2). Wysokość pomieszczeń (3,2 m) i otwarte przestrzenie nadają ekskluzywny charakter. ROZKŁAD Na parterze znajdują się:
Open space do własnej aranżacji Przyziemie:
LOKALIZACJA Znakomita lokalizacja osiedla, pozwala cieszyć się bliskością terenów zielonych bez konieczności rezygnowania z atrakcji, jakie oferuje miasto. Czyni to miejsce wyjątkowym zarówno dla singli, jak i rodzin z dziećmi. W odległości do 5 km międzynarodowe szkoły jak WBS - Polsko-Niemiecka Szkoła; Międzynarodowa Szkoła Europejska w Warszawie, IES; Polish British Academy of Warsaw; Ponadto liczne kawiarnie; restauracje, oraz atrakcje turystycznie (Wilanowski Park Kulturowy; Royal Golf Wilanów) DODATKOWE INFORMACJE
Zapraszam na prezentację. SZCZEGÓŁY OFERTY
LOKALIZACJA |
Małgorzata KrasowskaAsystentka Zarządum.krasowska@avenue-estate.com798 382 215ZAPYTAJ O NIERUCHOMOŚĆWyrażam zgodę na przetwarzanie danych osobowych w celach marketingowych przez firmę Avenue Estate Sp. z o.o., al. Rzeczypospolitej 18/118, 02-972, Warszawa i zapoznałem się z polityką prywatności. |

