DOM WOLNOSTOJĄCY REZYDENCJA MOKOTÓWAvenue Estate prezentuje nieruchomość, wyjątkowy dom - rezydencję na Górnym Mokotowie, idealny na siedzibę firmy, ambasadę czy też na cele mieszkaniowe.Zaprojektowany przez argentyńskiego architekta Hernana Gomeza, którego inspiracją było argentyńskie budownictwo z lat 30-tych i 40-tych ubiegłego stulecia. Wykorzystane przez architekta elementy klasyki pozwoliły stworzyć ponadczasowy projekt rezydencji. Celem zarówno słynącego z zamiłowania do detalu architekta jak i inwestora było stworzenie eleganckiej inwestycji o charakterze reprezentacyjnym. Powierzchnia działki 865 m2 liczba kondygnacji 3 liczba, 9 pokoi, 5 łazienek łącznie z toaletą. pod budynkiem znajduje się duży garaż na dwa samochody oraz 5 miejsc postojowych na terenie posesji. Lokalizacja: Rezydencja z ogrodem w Warszawie na Górnym Mokotowie. Dom o powierzchni 506 metrów, na działce 755 m2. Znakomita lokalizacja, doskonały punkt komunikacyjny. Dwie stacje metra (Wierzbno i Wilanowska) - w odległości 700 m, kilka przystanków autobusowych i tramwajowych - oddalone o kilka minut spacerem. Natomiast pobliska ulica Puławska stanowi jedną z głównych ciągów komunikacyjnych miasta, wzdłuż której znajduje się znaczna ilość obiektów usługowych i biurowych. W ciągu 15 minut można dostać się samochodem zarówno do centrum jak i lotnika F. Chopina. Bezpośredni dostęp do dwóch dróg publicznych (Wielicka i Orkana). Rozkład pomieszczeń: Parter: hall wejściowy połączony z pomieszczeniem na garderobę. jadalnia połączona z salonem i oranżeria. pokój, kuchnia z oranżerią śniadaniową, toaleta.
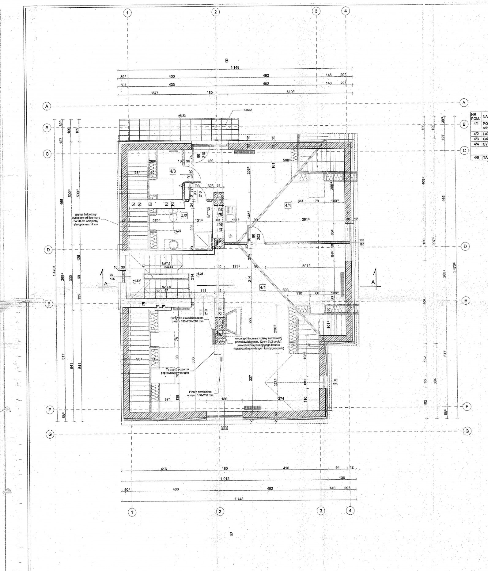
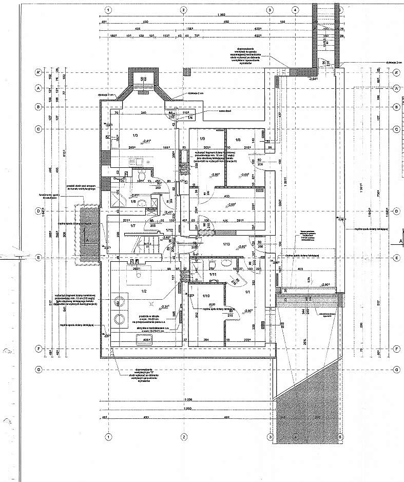
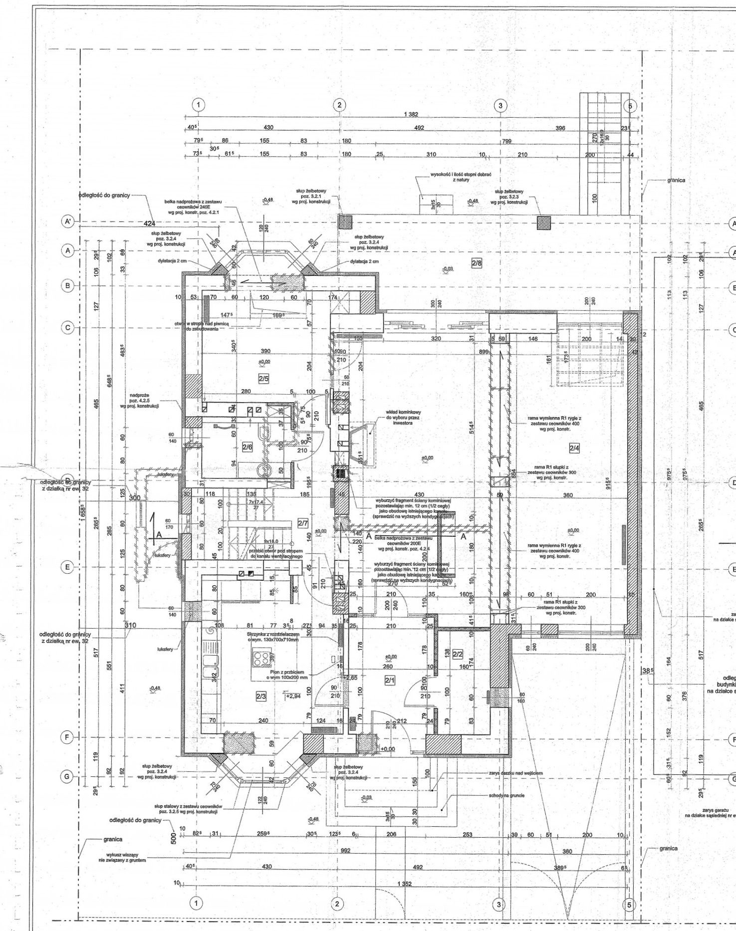
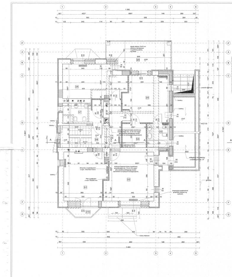
Podstawowe parametry budynku: • powierzchnia zabudowy budynku : 225,8 m2 • ilość kondygnacji : 3 • powierzchnia balkonów (2) i tarasów (3) : 49,5 m2 • powierzchnia poziomu -1 : 140,3 m2 • powierzchnia parteru : 145,9 m2 • powierzchnia I piętra : 117,0 m2 • powierzchnia II piętra : 103,2 m2 • powierzchnia całkowita : 506,4 m2 • wysokość kondygnacji : poziom - 1 : 2,30 m : parter : 2,94 m2 : piętro I : 2,70 m : piętro II : 1 m - 4,40 m Dodatkowe informacje: Działka uzbrojona jest w media: energię elektryczną, sieć wodociągową, sieć kanalizacyjną oraz gazową. Możliwości parkingu: • 2 miejsca parkingowe w garażu podziemnym, • na terenie działki możliwość zaparkowania co najmniej 4 samochodów, SZCZEGÓŁY OFERTY
LOKALIZACJA |
Robert RaptisPartnerr.raptis@avenue-estate.com605 555 619ZAPYTAJ O NIERUCHOMOŚĆWyrażam zgodę na przetwarzanie danych osobowych w celach marketingowych przez firmę Avenue Estate Sp. z o.o., al. Rzeczypospolitej 18/118, 02-972, Warszawa i zapoznałem się z polityką prywatności. |

