Warszawa Wawer Falenica - Działka na sprzedaż
1590㎡
2 350 000 PLN
1 478 PLN / ㎡

Działka inwestycyjna z pozwoleniem Wawer

Avenue Estate przedstawia działkę inwestycyjną z pozwoleniem na budowę - Warszawa Wawer Falenica. 

ATUTY

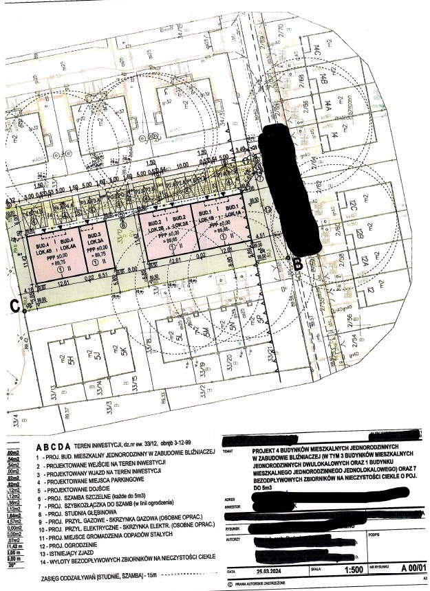
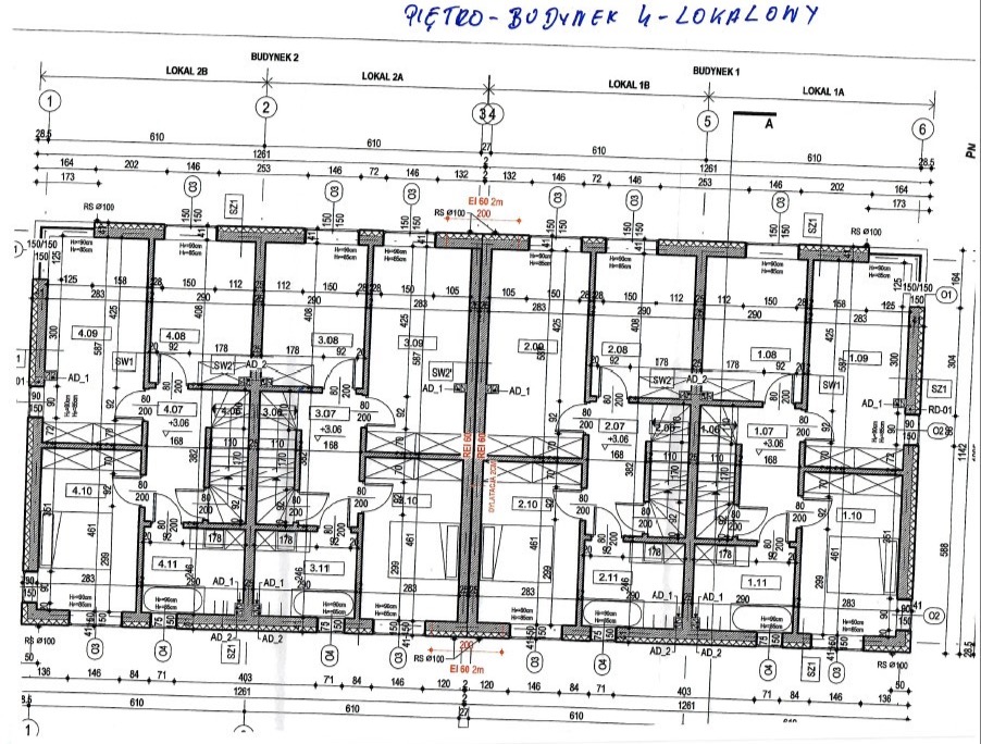
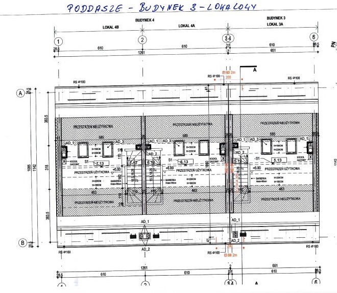
- Prawomocne pozwolenie na budowę 4 budynków bliźniaczych (7 lokali, ok. 128 m² każdy)
- Pełna dokumentacja projektowa w cenie
- Idealna propozycja dla dewelopera - możliwość szybkiego rozpoczęcia budowy
- Media doprowadzone: gaz, energia elektryczna (umowa C11), podpisane umowy przyłączeniowe
- Działka ogrodzona, z dojazdem asfaltowym
- Spokojna, zielona okolica - w sąsiedztwie las i zabudowa jednorodzinna

OPIS NIERUCHOMOŚCI

Na sprzedaż działka budowlana o powierzchni 1590 m², położona w zielonej części Wawra - Falenicy, przy ul. Przylaszczkowej. Nieruchomość posiada prawomocne pozwolenie na budowę (styczeń 2025 r.) wraz z kompletną dokumentacją projektową obejmującą realizację 4 budynków w zabudowie bliźniaczej, tworzących łącznie 7 lokali mieszkalnych o powierzchni ok. 128 m² każdy.

Dzięki gotowemu projektowi i podpisanym umowom na media inwestor może natychmiast przystąpić do prac. Działka ma regularny kształt o wymiarach 24 x 64 m, jest ogrodzona i posiada dostęp do asfaltowej drogi.

POZWOLENIE NA BUDOWĘ

• 4 budynki jednorodzinne w zabudowie bliźniaczej
• 3 budynki dwulokalowe
• 1 budynek jednolokalowy
• 7 lokali mieszkalnych o powierzchni użytkowej ok. 128 m²
• Do każdego lokalu przewidziano 2 miejsca postojowe

Media i Infrastruktura
• Gaz - doprowadzony do działki
• Energia elektryczna - umowa na prąd budowlany (C11), podpisane przyłączenie docelowe z realizacją do 28.09.2026
• Woda - z własnego ujęcia
• Ścieki - szambo zgodnie z projektem
• Dojazd drogą asfaltową + udział w drodze wewnętrznej

LOKALIZACJA

Nieruchomość znajduje się w spokojnej i zielonej części Wawra, zapewniającej jednocześnie wygodny dostęp do infrastruktury:
- Przystanki autobusowe linii 213 i 702 - ok. 650 m
- Szkoła podstawowa - ok. 600 m
- Planowane przedszkole w sąsiedztwie
- Sklepy: Netto (700 m), Biedronka (1,4 km), Lidl (2,3 km)
- Przychodnia zdrowia - ul. Bysławska

Okolica charakteryzuje się niską zabudową i bliskością lasów, co dodatkowo podnosi atrakcyjność inwestycyjną działki.

DODATKOWE INFORMACJE
• Doskonała propozycja dla dewelopera lub inwestora szukającego gotowego projektu z pełną dokumentacją

SZCZEGÓŁY OFERTY

Numer oferty: 195314
Powierzchnia użytkowa: 1590㎡
Rodzaj oferty: Sprzedaż
Cena: 2 350 000 PLN
Cena za ㎡: 1 478 PLN
Rodzaj oferty: Sprzedaż
Cena: 2 350 000 PLN
Cena za ㎡: 1 478 PLN

KONTAKT

Adrian Bogucki

Partner

a.bogucki@avenue-estate.com

608 435 542


LOKALIZACJA

Adrian Bogucki

Partner

a.bogucki@avenue-estate.com

608 435 542

ZAPYTAJ O NIERUCHOMOŚĆ






Wyrażam zgodę na przetwarzanie danych osobowych w celach marketingowych przez firmę Avenue Estate Sp. z o.o., al. Rzeczypospolitej 18/118, 02-972, Warszawa i zapoznałem się z polityką prywatności.